慈溪金悦龙府智能化项目设计

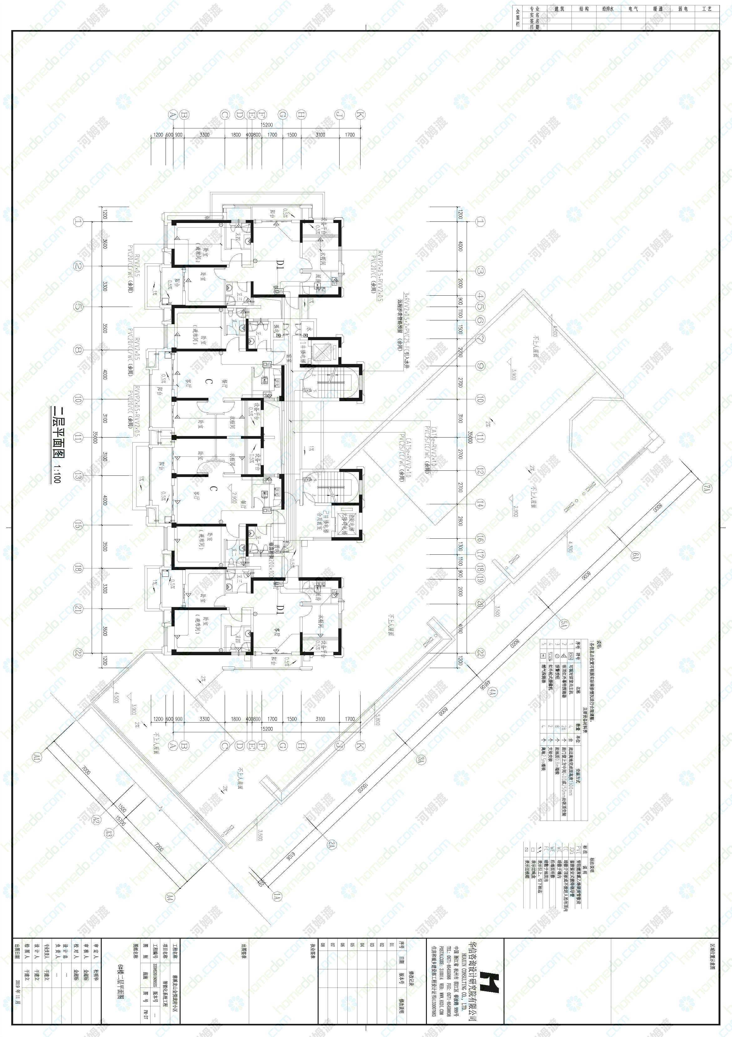
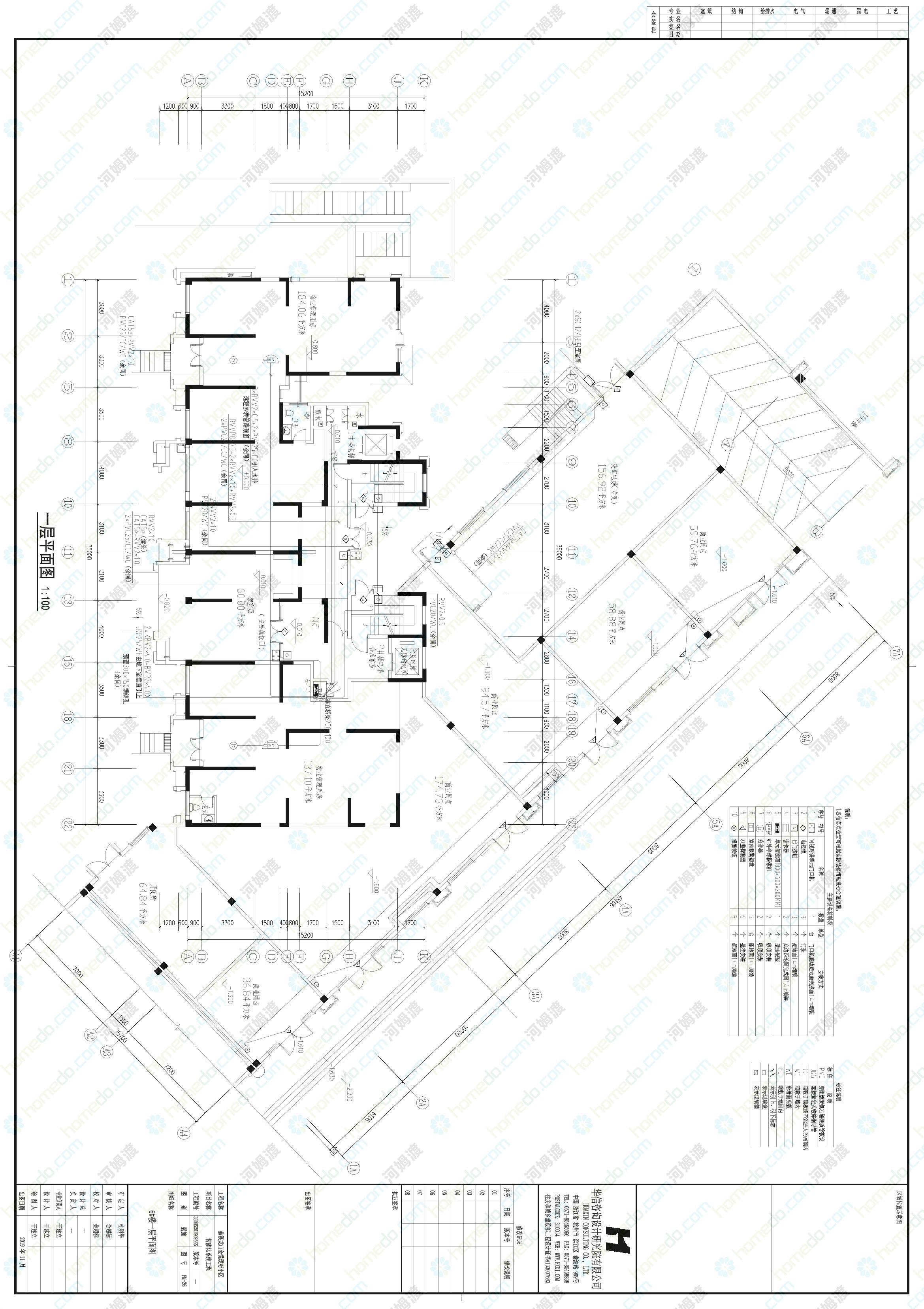
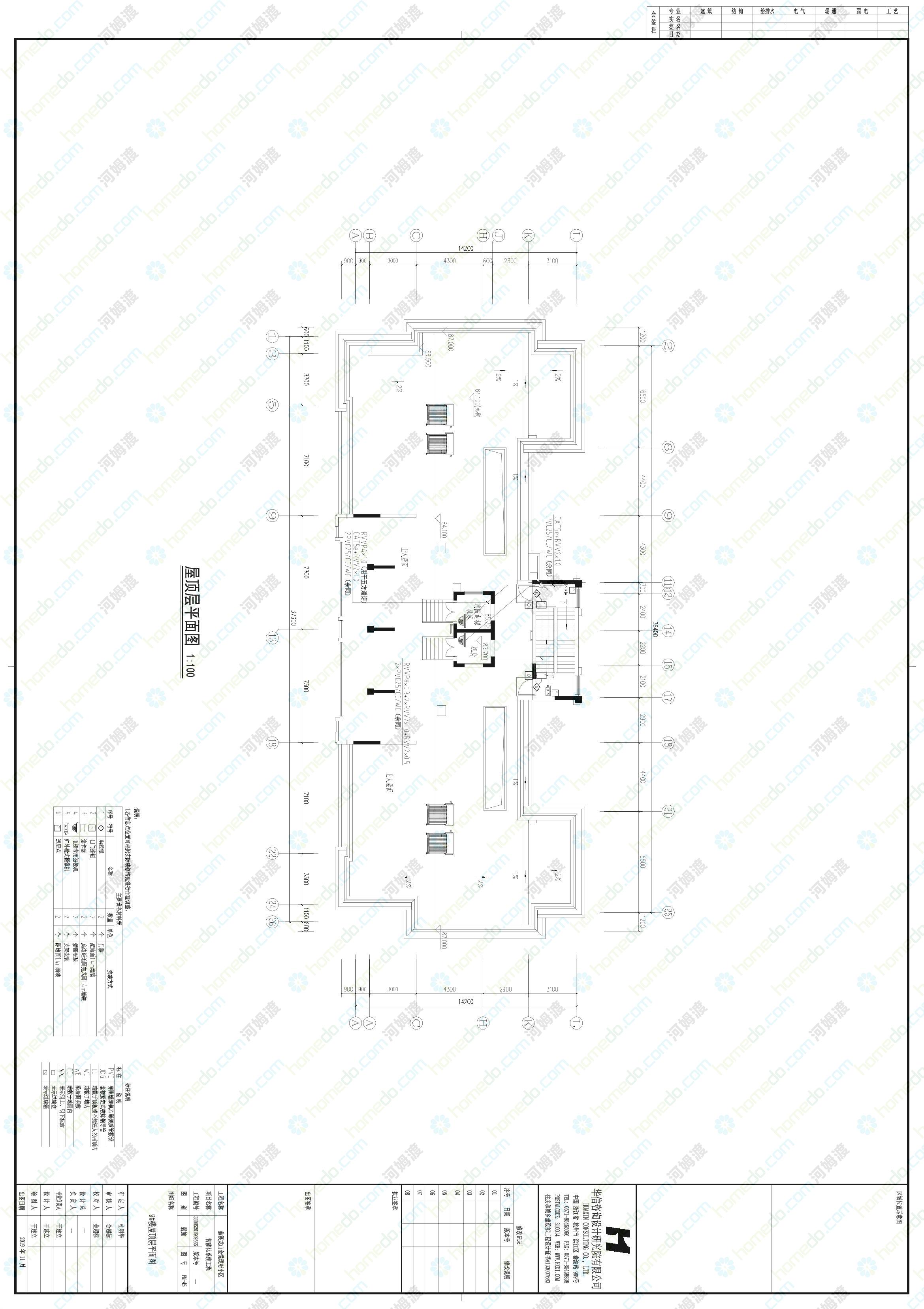
方案简介 此方案为慈溪龙山金悦珑府住宅智能化图纸。详细介绍慈溪龙山镇滨海新城住宅智能化各子系统点位平面布置图和线路布置图,对住宅智能化图纸具有参考价值。

建筑业态: 住宅建筑
系统属性: 智能化集成系统
  • 慈溪龙山金悦珑府智能化系统设计项目.pdf
  • 附件预览
  • 评论互动
评论互动
{{commentContent.length}}/140
发布评论
匿名评论 {{item.userAccount}}

{{item.content}}

{{item.replyPerson}}

{{item.replyContent}}

在线客服

Chen

方案下载收益排行

我要上传
  • 01
    技术宅

    ¥22440

  • 02
    l13403415738

    ¥17334.6

  • 03
    阿飞的小蝴蝶

    ¥17109.65

  • 04
    黎蓉

    ¥14673.5

  • 05
    godgodwin

    ¥11888.81

  • 06
    高工

    ¥10783

  • 07
    wangpeigang

    ¥10011.27

  • 08
    太鼓达人

    ¥8954.99

  • 09
    伟江湖行

    ¥8931.57

  • 10
    keventong

    ¥7926.31

尊重知识产权 尊重专业成果 付费下载方案

本方案为付费方案,可免费预览全部内容,仅需元,即可下载(无水印版)完整方案资料

结算信息

使用河币(1河币=1元)
可使用河币

方案定制化需求

方案定制化需求涉及到服务费用,费用多少由项目规模、系统复杂程度及所输出的成功有关,需与方案提供者协商确定

取消 提交